売却価格400万円、間取り5K、ワンハウス株式会社
登録番号:R07-17物件の概要
★取扱い不動産会社からの詳細情報!
快適と憧れ、その両方を叶える平屋。
海岸・総合病院・公共交通機関がすべて徒歩5分圏内に。
誰もが一度は夢見た生活がここにはあります。
| 物件所在地 | 岩城内道川 |
| 売却希望価格 | 400万円 |
| 賃貸希望価格(月額) | 賃貸希望なし |
| 建築年 | 昭和50年建築 |
| 建築構造 |
木造平屋建て |
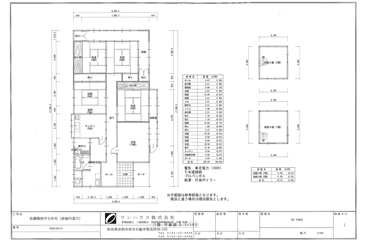
| 間取り | 5K |
| 空き家となった時期 | 令和2年2月 |
| 敷地面積 | 349.42㎡ |
| 建築面積 | 149.25㎡ |
| 延床面積 | 149.25㎡ |
|
取扱い事業者 ※物件内覧を含む、交渉や契約については右記にご連絡願います。 |
ワンハウス株式会社 〒015-0011 秋田県由利本荘市石脇字尾花沢56-103 電話:0184-23-3826 HP:ワンハウス株式会社-秋田・由利本荘市の住宅・リフォーム・賃貸情報なら- |
| 備考 |
○未登記の小屋有り |
○下記の付帯物件あり設備状況
電気
即利用可
ガス
手続きが必要
水道
即利用可
キッチン
ガス
バス
灯油
トイレ
水洗
駐車場
1台
その他
小屋(未登記)
羽越本線 道川駅 0.1km 1.3km最寄施設までの距離
駅
バス停
市コミュニティバス 道川北線道川駅東口停
0.1km
市役所
岩城総合支所
2.1km
病院
あきた医院
0.2km
保育園
道川保育園
0.6km
小学校
岩城小学校
8.6km
中学校
岩城中学校
3.9km
スーパー
道の駅岩城
2.1km
コンビニ
ファミリーマート由利本荘岩城店
写真をクリックすると大きな写真を表示できます。
※物件掲載内容と現況に相違がある場合は現況を優先と致します。





















