売却価格355万円、間取り7DK、藤内不動産コンサルタント
登録番号:R07-24物件の概要
★取り扱い不動産会社からの詳細情報!(準備中)
藤内不動産コンサルタント
物件所在地
砂子下
売却希望価格
355万円
賃貸希望価格(月額)
賃貸希望なし
建築年
昭和50年
建築構造
木造2階建て
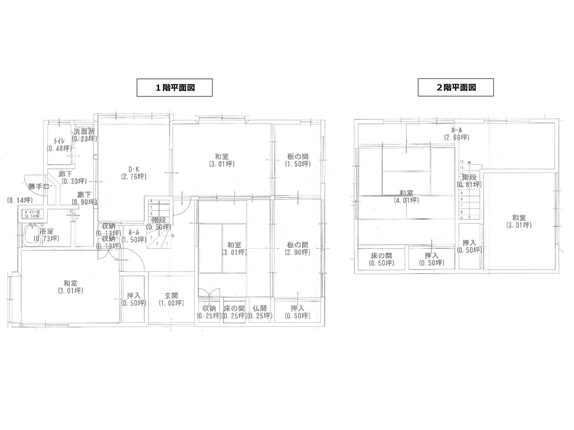
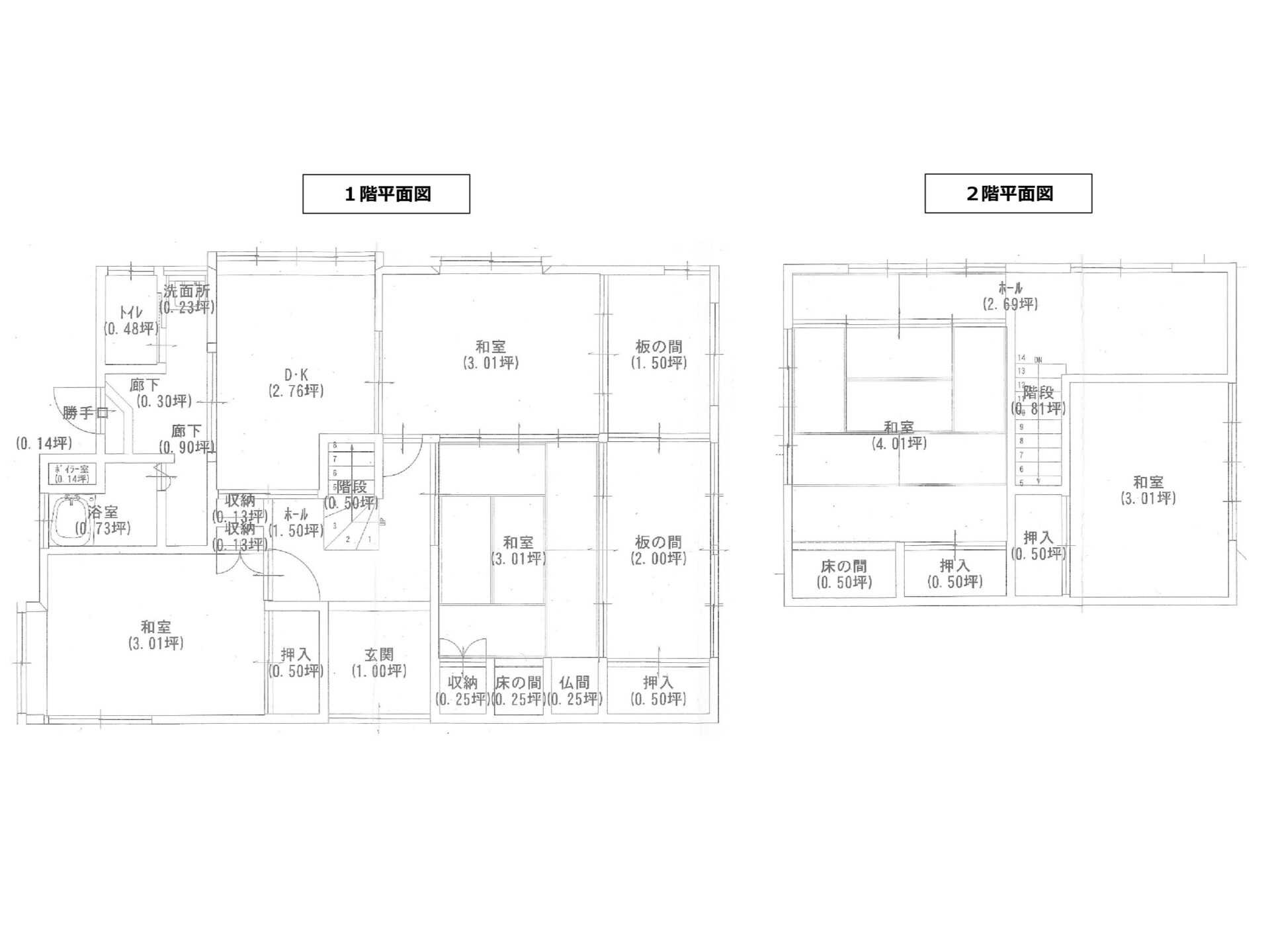
間取り
7DK
空き家となった時期
平成22年3月
敷地面積
154.98㎡
建築面積
76.72㎡
延床面積
116.47㎡
取扱い事業者
※物件内覧を含む、
「交渉」、「契約」については右記にご連絡願います。
〒015-0077
由利本荘市本田仲町1番地
電話:0184-22-2196
HP:【ハトマークサイト】藤内不動産コンサルタント(秋田県由利本荘市本田仲町)
備考
〇道路敷他土地あり
〇付帯物件:車庫兼物置
電気
手続きが必要
ガス
手続きが必要
水道
即利用可
キッチン
電気・ガス
バス
電気・灯油
トイレ
水洗
駐車場
あり(1台)
その他
〇車庫シャッターが経年劣化により開閉不可
〇内壁や畳の一部に経年劣化あり
駅
JR羽越線 羽後本荘
1.7km
バス停
羽後交通 東北電力前
0.1km
市役所
由利本荘市役所
1.0km
病院
佐藤病院
1.5km
保育園
本荘カトリックこども園
0.2km
小学校
鶴舞小学校
1.3km
中学校
本荘南中学校
0.7km
スーパー
イオンスタイル本荘中央店
1.5km
コンビニ
セブンイレブン由利本荘井戸尻店
0.4km
※物件掲載内容と現況に相違がある場合は現況を優先と致します。

















