売却価格180万円、間取り7K、㈱サンタクマ
登録番号:R07-22物件の概要
★取り扱い不動産会社からの詳細情報はコチラ
株式会社サンタクマ
物件所在地
本荘 松ヶ崎
売却希望価格
180万円
賃貸希望価格(月額)
賃貸希望なし
建築年
不明
建築構造
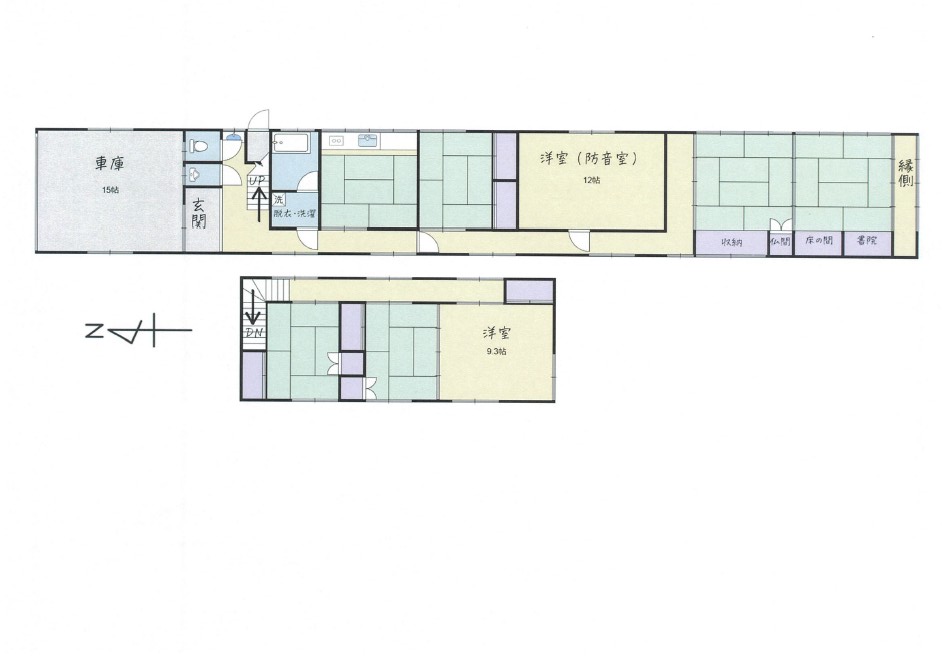
木造2階建て
間取り
7K
空き家となった時期
平成24年4月
敷地面積
221.48㎡
建築面積
144.62㎡
延床面積
198.34㎡
取扱い事業者
※物件内覧を含む、
「交渉」、「契約」については右記にご連絡願います。
〒018-0604
由利本荘市西目町沼田字新道下2-393
電話:0184-33-2181
HP:サンタクマ|由利本荘市の不動産情報 | 売買・仲介|宅地・中古住宅 (santakuma.net)
備考
電気
手続きが必要
ガス
手続きが必要
水道
即利用可
キッチン
ガス
バス
灯油
トイレ
水洗
駐車場
あり
その他
JR羽越線 羽後亀田駅 羽後交通松ヶ崎/秋田線 松ヶ崎大町停留所
駅
1.5km
バス停
0.12km
市役所
岩城総合支所
5.8km
病院
松ヶ崎診療所
0.8Km
保育園
亀田保育園
3.7km
小学校
岩城小学校
2.7km
中学校
岩城中学校
3.7km
スーパー
DCMニコット岩城店
3.7km
コンビニ
ローソン 岩城二古店
4.9km
※物件掲載内容と現況に相違がある場合は現況を優先と致します。




















