売却価格1200万円、間取り7K、ワンハウス株式会社
登録番号:R07-19物件の概要
★取り扱い不動産会社からの詳細情報!
広々とした回遊動線で、毎日がもっと自由に。
お風呂やトイレの手すりは介護や子育て世帯にも安心♪
ジュニアからシニアまで、笑顔になれる家。
取扱い事業者 ※物件内覧を含む、交渉や契約については右記にご連絡願います。 未登記箇所有り
物件所在地
本荘鶴沼
売却希望価格
1200万円
賃貸希望価格(月額)
賃貸希望なし
建築年
昭和38年建築
建築構造
木造2階建て
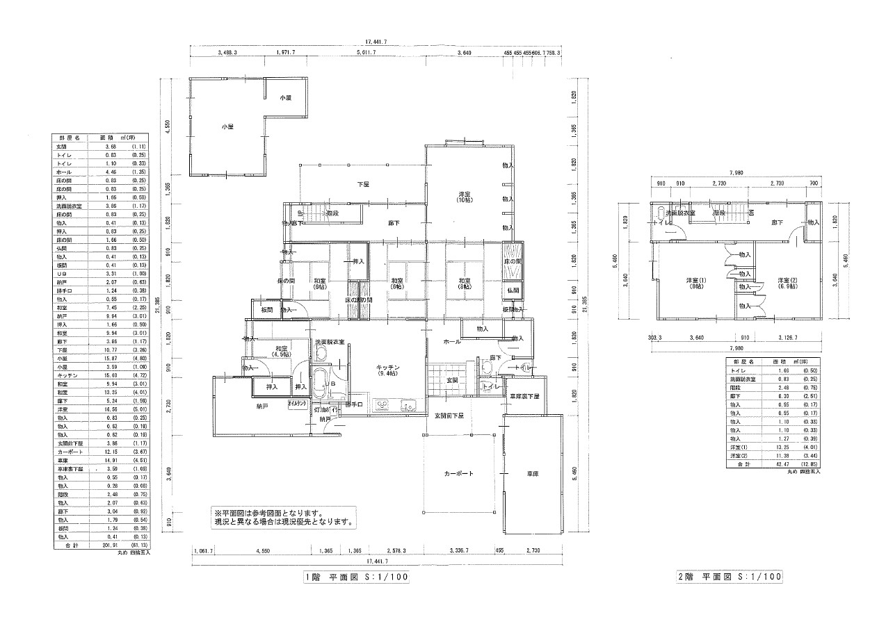
間取り
7K
空き家となった時期
令和2年6月
敷地面積
331.10㎡
建築面積
135.11㎡
延床面積
177.58㎡
ワンハウス株式会社
〒015-0011 秋田県由利本荘市石脇字尾花沢56-103
電話:0184-23-3826
HP:ワンハウス株式会社-秋田・由利本荘市の住宅・リフォーム・賃貸情報なら-
備考
(詳細は上記取扱い事業者まで)
下記の付帯物件あり。
電気
即利用可
ガス
手続きが必要
水道
即利用可
キッチン
ガス
バス
灯油
トイレ
水洗
駐車場
1台駐車可能
その他
○車庫
○納戸
○小屋
駅
JR羽越本線 羽後本荘駅
1.6km
バス停
羽後交通 砂子下
0.6km
市役所
由利本荘市役所
0.9km
病院
清水泌尿器科内科医院
0.2Km
保育園
本荘保育園
0.5km
小学校
尾崎小学校
1.0km
中学校
本荘南中学校
0.6km
スーパー
業務スーパー本荘鶴沼店
0.4km
コンビニ
セブンイレブン井戸尻店
0.6km
※物件掲載内容と現況に相違がある場合は現況を優先と致します。







































